28.01.2021 13:05:22
Zduńska Wola

Plany na kolejne mieszkania w Zduńskiej Woli

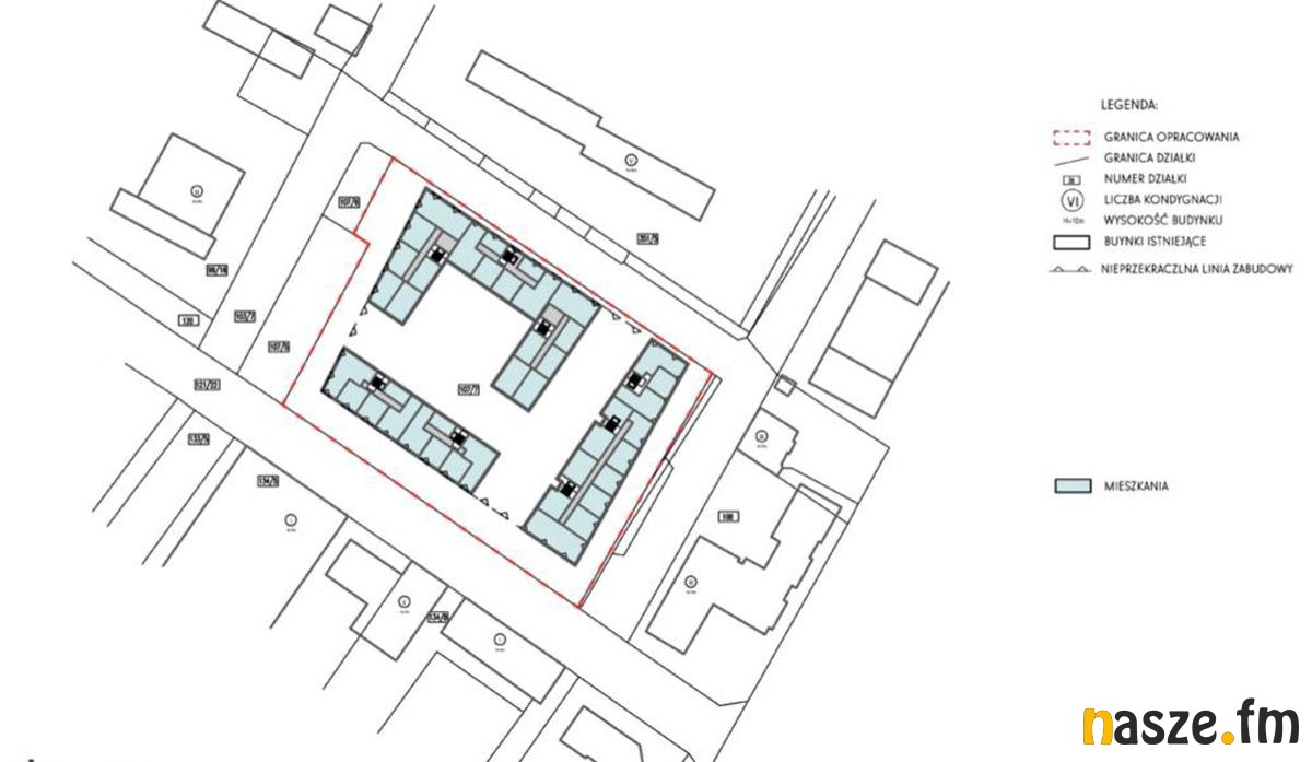
W Zduńskiej Woli mają powstać trzy nowe apartamentowce. Wybudowane zostaną na działce po byłym boisku Zespołu Szkół Zawodowych przy ul. Żeromskiego. Będzie to druga inwestycja, po ul. Karłowicza, którą łódzka firma deweloperska chce zrealizować w mieście.

(fot. Royal Sail Investment Group)

Firma Royal Sail Investment Group kupiła działkę w centrum Zduńskiej Woli przy ul. Żeromskiego 15-17. Mają tam powstać trzy apartamentowce, a w nich 180 mieszkań, lokale usługowe i podziemny garaż. To już druga inwestycja, po ul. Karłowicza na os. Południe łódzkiego dewelopera w Zduńskiej Woli.

Osiedle Żeromskiego w Zduńskiej Woli powstanie przy ul. Żeromskiego 15/17. Teren daje potencjał, żeby wybudować trzy Osiedle Żeromskiego w Zduńskiej Woli

Szacowany koszt inwestycji to 50 mln zł, a czas realizacji to ok. 4-5 lat. Planowany metraż mieszkań to 30 do 130 mkw. W sumie ma powstać 180 mieszkań.

-W Zduńskiej Woli inwestujemy, bo jest to miasto, które dobrze się rozwija. Jest to miasto, w którym potrzebne są nowe mieszkania, a ich brakuje. Mieszkańcy chcą podnosić metraż, standard swojego mieszkania. Są też osoby, które inwestycyjnie chcą kupić mieszkania na wynajem. Dlatego zdecydowaliśmy się na Zduńską Wolę, bo bardzo wierzymy w ten rynek - podkreśla Przemysław Andrzejak, prezes Royal Sail Investment Group.

Łódzka firma deweloperska za działkę, gdzie kiedyś znajdowało się boisko Zespołu Szkół Zawodowych, zapłaciła powiatowi zduńskowolskiemu 2,8 mln zł netto ( ok. 3,5 mln zł brutto).

- Powiat się cieszy zasobu finansowego i z tego, że teren, który został sprzedany, a wiele lat stał pusty, zostanie zagospodarowany i zyska nowy blask - mówi Hanna Iwaniuk, Starosta Powiatu Zduńskowolskiego.

Royal Sail Investment Group realizuje też w Zduńskiej Woli projekt Nowy Manhattan. Przy ul. Karłowicza powstanie 80 mieszkań. Prace budowlane mają się tam rozpocząć się w kwietniu tego roku.

Komentarze

Zdw
09.04.2021 09:20:40
A czy ten deweloper już coś wybudował? Bo próżno szukać takich informacji no i ten kapitał zakładowy 70.000zł jest niepokojący. Wygląda na firmę wydmuszkę
Brawo !
31.01.2021 11:47:36
Wysprzedać wszystko, po co nam Zduńska Wola ! Teraz wystawcie na licytację budynek Starostwa Powiatowego , Szkoły Elektronik , Szkoły Mechanik , Szkoły Kolejowej , 2 x LO i byłą MILICJĘ ! Po co nam to wszystko ! Brawo za pomysł i gospodarność ! A Urząd Miasta niech pozbędzie się Wodociągów i Miejskich Sieci Cieplnych !
Do Ewcia
30.01.2021 11:33:22
Może najpierw zrobić porządek z ludźmi co śmieci spalają a latem nie potrafią wyłączyć co. Z kominów kopci się przez 365 dni w roku i 24 na dobę. Wstyd OGROMNA WŁADZO.
Ewcia
29.01.2021 20:24:10
Najpierw zajmijcie się remontem starych kamienic które straszą nasze miasto ☹️ Może zainwestujcie kasę w stare piece na terenie miasta.Oddychac się nie da
bolo do zenon
29.01.2021 10:47:47
zenon nie wiem co bierzesz ale bierz po pół, oni odwołali Beleń bo nie było kasy a zrobią apartamentowce -hehe, może na plandece którą zakryją biedę Zduńskiej Woli. to działania czysto zadymiające - plany, strategie, agendy... a bieda aż piszczy.
Byk
28.01.2021 23:18:40
Temu państwu już dziękujemy. Niech wsadzają już te swoje kwiatki. Niech nie biorą się za zabawki którymi nie potrafią się bawić.
zenon
28.01.2021 21:10:25
No to zduńskowolskim pisiakom dowalili tymi apartamentowcami a jeśli rzeczywiście będą tam podziemne garaże to pisolstwo dostanie szała.
Ja
28.01.2021 20:57:45
Ten placyk może się jedynie nadawać na pole namiotowe i to nie więcej niż dwadzieścia namiotów. Kto to wymyślą.
Grabowiec
28.01.2021 20:12:14
kto to jest na tym zdjeciu numer 7
szef
28.01.2021 20:12:11
"Miasto sie dobrze rozwija" ale im głupot nagadali ze heeej
Mirabelki i szczaw PO Niesiolow
28.01.2021 18:23:59
Super, przydałby się jeszcze autobusy do lodzi albo sieradza żeby można a apartamentu dojechać do pracy...
Rodowity
28.01.2021 18:07:58
Same plany a na razie. Cisza ,Pani pojawiła się ,Rekonstrukcja patriotyczna znana w całej Polsce zlikwidowana
Bolo
28.01.2021 17:02:07
Mieszkańcy ZDW powinni zabronić włodarzom robić więcej planów, oni koncentrują sie na planach i już na realizacje nie zostaje czasu, zamknąć ich w ratuszu ma kwartał i niech wykonają choć jedno co zaplanowali
Bolo
28.01.2021 16:59:18
Jakby w ZDW był choć jeden co robi na tych 10-ciu planistów to może by coś wyszło.. Jak narazie to są zwykli ślizgacze i akcja Wisła: - Płyniemy z prądem i trzymamy sie koryta
III
28.01.2021 16:58:28
Królewski Żagiel - oby nie popłynęli..
Do zzz
28.01.2021 15:41:18
Tak tak nie komentuj,żal cztery litery ściska.W Sieradzu jedno rondo budują x lat jak jakąś uliczkę wyremontuja hallo na całą okolicę.Postawili wam galerię,Leroya i magazyn biedronki a już prezycie muskuły niby Warszawa.
Rozbawiony
28.01.2021 15:40:03
Dobrze, że Zduńską Wola jest miastem, które dobrze się rozwija Bo będzie komu kupować te mieszkania za minimum 300K za kawalerkę HA HA HA
jaro
28.01.2021 15:21:57
i po co to budowac jak to bedą pustostany za 5 lat ha
Zdw
28.01.2021 15:18:46
Po co nam tanie mieszkania dla młodych, lepiej budować dla bogatych
Do Szymon
28.01.2021 14:53:57
Chyba nie wiesz co się teraz dzieje z cenami materiałów. Nie ma szans w tym mieście na obniżenie cen mieszkań. Za budowę skromnego 90 m. domu, z wykończeniem i wyposażeniem, szykuj 400 tyś. zł. Myślę, że ceny nowych mieszkań też będą odpowiednie, licząc nawet 120 tyś. zł za kawalerkę i to w stanie deweloperskim.
Lech
28.01.2021 14:51:38
Cena m2 bedzie taka, ze sie wszyscy zdziwicie. Niewielu bedzie stac na wydanie 5-6 tys. zł za m2, bo Zdunska Wola to nie Lodz, a nikt nie buduje za darmo.
XXX
28.01.2021 14:47:33
I tak powinno być. To developer buduje i sprzedaje. A nie tylko "miasto daj i daj". Z rozdawnictwem czas skończyć.
szymon
28.01.2021 13:57:23
dobrze. niech budują. rynek wtórny dostanie po dupie. skonczą sie spekulacyjne ceny miszkan w cenie prawie jak nieduzy domek, czy chocby spadną koszt wynajmu oblesnych kawalerek
zzz
28.01.2021 13:40:03
"W Zduńskiej Woli inwestujemy, bo jest to miasto, które dobrze się rozwija" no cóż... chyba szkoda tworzyć komentarz.
ttt
28.01.2021 13:25:15
dobrze jakby wybudowali trzy punktowce o wyskosc mniej wiecej jak Zus. Zdunia miałby swoje City

Więcej informacji

region
SPORT

Wyjeździł podium

Dzisiaj, 14:35:32

Rafał Paprota (BM Racing Team) startował w chorwackim Grobniku, gdzie odbyła się 2. runda serii wyścigowej Clio Cup Bohemia. Kierowca z Zapola wziął udział w dwóch wyścigach i w tym pierwszym zdołał stanąć na podium.

0
region

Dopisała pogoda i zwiedzający. Noc Muzeów w regionie

Dzisiaj, 08:06:25

Wielu mieszkańców regionu skorzystało z atrakcji zaplanowanych na tegoroczną Noc Muzeów. W rozmowie z naszą reporterką mówili, że to wyjątkowa okazja do tego, żeby wyjść z domu. W sobotę, do późnych godzin, można było zwiedzać muzea i galerie w Sieradzu i w Zduńskiej Woli.

0
region
SPORT

Sobota z okręgówką

Wczoraj, 22:06:32

Za nami 25. kolejka Sieradzkiej Klasy Okręgowej. Na pozycji lidera umocnił się Ekolog Wojsławice. Po bezbramkowym remisie na trzecie miejsce spadły rezerwy Warty Sieradz, wysokie zwycięstwo odniosła czwarta Jutrzenka Warta, a na piątym miejscu pozostaje Pogoń Zduńska Wola, która po trzech porażkach z rzędu, tym razem zdołała zdobyć punkt.

1
Nasze Radio 104,7 FM
Co teraz?
On Air
15:17
Almost Unreal
Roxette
Nasze Radio 92,1 FM... nostalgicznie!
Co teraz?
On Air
15:17
Życie na blue jeans
Zbigniew Wodecki
Nowy odcinek
Giełda Ogłoszeń Drobnych
z dnia 15.05.2026
Giełda Ogłoszeń Drobnych - 15.05.2026
Posłuchaj i zobacz transkrypcję → Wszystkie odcinki
00:00 00:00
15.05.2026 Aneta Barton zaprasza do Teatru Miejskiego w Sieradzu na widowisko muzyczne Teatru Tańca Arabeska
15.05.2026 Miesiąc Zdrowia Rodzin z łódzkim NFZ. O szczegłóach mówi Magdalena Góralczyk z ŁOW NFZ
15.05.2026 Rozmowa ze st. bryg. Radosławem Jadwiszczakiem, Komendantem Powaitowym PSP w Sieradzu
14.05.2026 Prezydent Konrad Pokora odpowiada na zarzuty radnych PiS
14.05.2026 Radni PiS krytykują powołanie nowej prezes Zduńskiego Sportu

Co, gdzie, kiedy

17.05.2026
Sieradzka Majówka Strażacka
Sieradz, Skwer dh. F. Szczepaniaka
VI Dni Seniora
Plac Wolności 26 w Zduńskiej Woli
20.05.2026
Spotkanie z Włodzimierzem Czarzastym, Wicemarszałkiem Sejmu RP
Starostwo Powiatowe w Sieradzu
21.05.2026
Wernisaż wystawy Bajkowy świat"
Gminny Dom Kultury w Brąszewicach
Koncert Irek Głyk Trio
Foyer w nowej części Sieradzkiego Centrum Kultury
Więcej...








Lista przebojów HitFM Naszego Radia
1
Dawid Podsiadło
sezon
2
Alex Warren
FEVER DREAM
3
Wiktor Waligóra & DrySkull
Cztery pory roku
Nasze Radio 104,7 FM
🎵 Ładowanie...