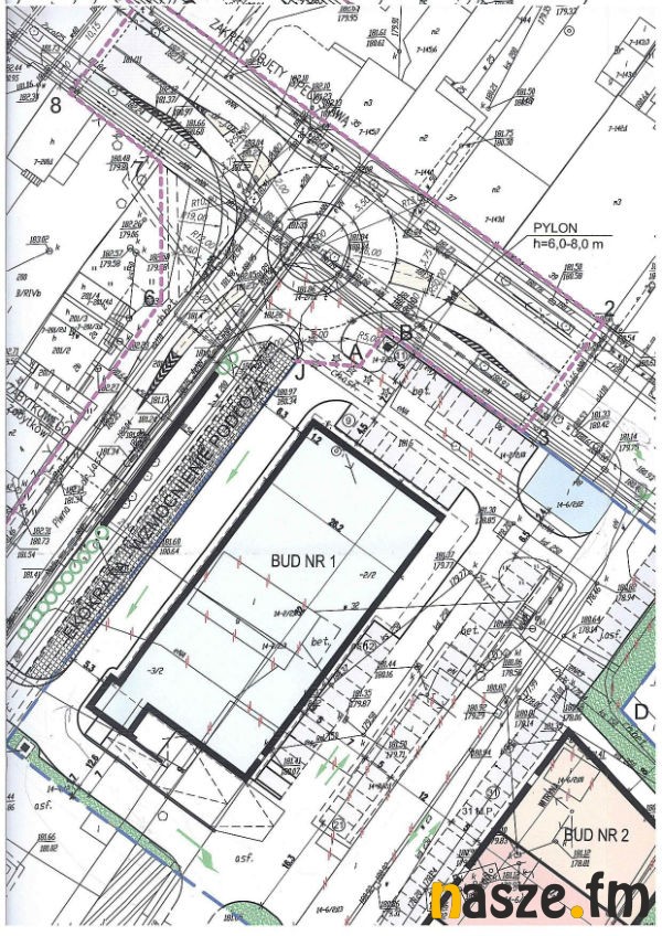
Nowe rondo w Zduńskiej Woli?
Na skrzyżowaniu, u zbiegu ulic Piwnej i Łaskiej w Zduńskiej Woli powstać ma rondo. Jest to pomysł inwestora, który na terenie obecnej bazy PKS zbuduje pawilony handlowe.
Prezydenci miasta przedstawili dokument w postaci wstępnego projektu zagospodarowania terenu wraz z organizacją ruchu, którego najistotniejszym elementem ma być właśnie skrzyżowanie o ruchu okrężnym.
- Tak naprawdę to my wywołaliśmy ten temat z uwagi na doświadczenia sprzed kilku lat, które doprowadziły do tego, że w miejscu zupełnie do tego nieupoważnionym na ul. Łaskiej bez jakiejkolwiek zmiany organizacji ruchu postawiono obiekt wielkopowierzchniowy. Wszyscy mieszkańcy widzą co tam się dzieje, każdego dnia na chodniku. To nie jest tak, jak twierdzi starosta, że to miasto umożliwia takie inwestycje w przestrzennych planach zagospodarowania terenu. Plany dopuszczają budowę takich obiektów, a to stwierdzenie "dopuszczają" jest dla nas kluczowe ponieważ później organizację ruchu i wszelkie zezwolenia wydaje starostwo powiatowe. Może ono zablokować tego typu inwestycje chociażby ze względu na niemożliwości techniczne w dostosowaniu organizacji ruchu. - stwierdza wiceprezydent Andrzej Brodzki.
Dodaje, że właśnie stąd wzięła się determinacja miasta związana ze skrzyżowaniem, które miałoby się znajdować na skrzyżowaniu ul. Łaskiej z ul. Piwną, która jest bardzo ważnym traktem w centrum miasta, alternatywnym do ul. Kościelnej i Łąkowej.
- Uznaliśmy, że taka polityka pójścia po najniższej linii oporu, czyli zrobienia kilku słupów oświetleniowych i sygnalizacji świetlnych, które są najtańsze w organizacji ruchu. Chcemy dzisiaj przedstawić oficjalny dokument. Jest to projekt zagospodarowania terenu wraz z organizacją ruchu, gdzie inwestor ewidentni pokazuje rondo na tym skrzyżowaniu. Będzie bezpieczniejsze, dużo bardziej płynne. A jednocześnie umożliwienie lewoskrętu z ulicy Piwnej w ulicę Łaską w kierunku placu Wolności tak naprawdę odciąży również ruch w Alejach Kościuszki i na ulicy Kościelnej - mówi wiceprezydent.
Zdaniem prezydenta Piotra Niedźwieckiego, budowa ronda u zbiegu tych ulic mogłaby rozpocząć się już wcześniej, gdyby komunikacja między urzędem miasta a starostwem powiatowym była dostatecznie dobra.
- Gdyby rzeczywiście niezwykle skutecznie podejść do tych rozwiązań, które zaproponowało miasto to prawdopodobnie trwałyby już prace inwestycyjne. Trzeba tu wyraźnie podkreślić, że starostwo powiatowe przez blisko pół roku nie informowało miasta o tak kluczowych przedsięwzięciach związanych z centrum Zduńskiej Woli. To też jest odpowiedź na to, że nie powinno być braku komunikowania się w tak zasadniczych kwestiach dwóch organów samorządowych: miasta i starostwa powiatowego. - wyraził swoją opinię prezydent Piotr Niedźwiecki
Starostwo powiatowe uważa natomiast, że kwestia wybudowania skrzyżowania o ruchu okrężnym nie jest niczym innowacyjnym. - Odbyło się spotkanie z inwestorem. Mamy również korespondencję, w której zarząd powiatu odniósł się do przedstawionej koncepcji budowy ronda. Koncepcja ta, bo to nie jest jeszcze projekt, został zatwierdzony. Mamy pewne uwagi dotyczące prawoskrętów i mamy również nadzieję, że w końcu w Zduńskiej Woli pojawi się rondo. Będzie to rondo, jeżeli zostanie wybudowane, na skrzyżowaniu dwóch dróg powiatowych a nie miejskich. - stwierdza Piotr Pacelt ze zduńskowolskiego starostwa powiatowego.
Dlaczego na temat ronda, które wybudowane ma zostać u zbiegu ulic, które są powiatowe informują najpierw przedstawiciele miasta? O tym również Piotr Pacelt naczelnik referatu dróg zduńskowolskiego starostwa powiatowego.
- Miasto Zduńska Wola decyduje w zakresie decyzji o warunkach zabudowy. O obiekcie handlowym, o jego usytuowaniu. Obsługa komunikacyjna absolutnie nie jest kwestią, co do której miasto będzie się wypowiadało, bo prezydent miasta w tej sprawie nie ma kompetencji. Powiat koncepcji budowy ronda nigdy nie odrzucał, wręcz proponowaliśmy to inwestorowi.
Władze miasta twierdzą, że budowa ronda u zbiegu Łaskiej i Piwnej przeprowadzona zostanie w tym roku. Zdaniem Piotra Pacelta dopóki inwestor ostatecznie nie potwierdzi i nie zaakceptuje planu przebudowy tych ulic, nie można mówić w jakim terminie to zadanie zostanie zrealizowane.
- Nie ma pewności co do ostatecznego kształtu, terminu realizacji. Ja również jestem zwolennikiem budowy rodna. Czy będą kwiatki na środku tego ronda? Tego jeszcze nie wiem, bo to również zależy od inwestora. Będziemy z nim rozmawiać na ten temat i nie będzie to miejsce, którego będziemy się wstydzić. - dodał na koniec Piotr Pacelt.
Więcej informacji
Sieradzanie na Warsaw Cup
Wczoraj, 17:49:50
Reprezentanci Sieradzkiego Klubu Karate Kyokushinkai startowali na Międzynarodowym Turnieju Warsaw Cup. Zawodnicy z naszego regionu zdobyli 11 medali.
Nabór uzupełniający na mieszkania przy Chełmońskiego w Zduńskiej Woli
Wczoraj, 15:54:12
Pięć mieszkań w nowo budowanych blokach przy ul. Józefa Chełmońskiego w Zduńskiej Woli nie ma jeszcze lokatorów. Rozpoczyna się nabór uzupełniający, w którym o umowę najmu mogą starać się Zduńskowolanie spełniający kryteria.
3. Zduńskowolski Festiwal Biegowy
Wczoraj, 13:57:44
Przed nami trzecia edycja Zduńskowolskiego Festiwalu Biegowego. Zawody odbędą się 31 maja, a do 28 maja przyjmowane są zapisy. Start i metę przewidziano na terenie Powiatowego Międzyszkolnego Ośrodka Sportowego w Zduńskiej Woli.

Komentarze
http://www.nasze.fm/news,9589
Też już ogłaszali sukces i do tej pory tam trawa rośnie. Jak się nie wie jak rządzić miastem, to można takiego inwestora tylko wystraszyć nic więcej.
Ja wiem że to wstyd, ale jeszcze większym jest pisanie takich głupot.
A Brodzki? jak był Rzeźniczak to się przytulił, jak jest Niedźwiecki też się przytulił. Taki ideopogiczny człowiek z tego Brodzkiego. Nic go nie interesuje tylko być u władzy i brać kase.
Czas na was panowie. Najwyższy czas abyście odeszli do lamusa na śmietnik historii.
Podobno następny market ma powstać na os. południu na Karola Szymanowskiego? Czy ktoś wie cos o tamtym makiecie?
Jeszcze inny ma powstać na pl. Wolności po tej ruinie inwalidów. Jaki ?
Coś Ci się pomajtało.Więcej skromności !!!
Hahaha. A kto jest odpowiedzialny za tak lichą komunikację, zgadnijmy panie prezydencie :D